x

Collaborazione con architetti

Facciamo tutto il possibile per supportare architetti e progettisti, perché sappiamo che la chiave del successo sta nel lavorare con persone visionarie. E ci riempie di orgoglio quando le nostre recinzioni contribuiscono a trasformare le visioni in realtà.

Volete stupire con soluzioni intelligenti? Potete contare sulla nostra pluriennale esperienza: i nostri sistemi di recinzione retrattile sono personalizzati e si adattano anche alle condizioni più insolite e impegnative. Non vediamo problemi, vediamo sfide.

Avete domande? Vi supportiamo con la nostra competenza e saremo lieti di inviarvi schede tecniche dettagliate per rendere il processo di progettazione più semplice e veloce.

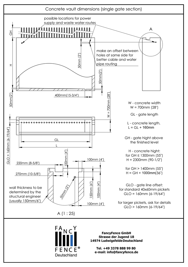
File PDF con dimensioni del vano in cemento

Posizione del vano in cemento nel sottosuolo
Scarica
Posizione del vano in cemento sulla proprietà
Scarica
Dimensioni del vano in cemento
Scarica
Posizione delle linee di alimentazione
Scarica
Guida progettuale: posizione del vano
Scarica

Certificati

Esecuzione rivestita di recinzione di lusso
Esecuzione rivestita di recinzione di lusso
Scarica
Esecuzione del picchetto Fancy Fence
Esecuzione del picchetto Fancy Fence
Scarica
Esecuzione semi-rivestita di Fancy Fence
Esecuzione semi-rivestita di Fancy Fence
Scarica
Cancello di recinzione di alta sicurezza
Cancello di recinzione di alta sicurezza
Scarica

Realizzazioni

Configura il tuo cancello retrattile

Vai al CONFIGURATORE

Numero di telefono

+39 3516853698

Indirizzo

FANCY FENCE Italia S.r.l. (in costituzione)
Via S. Maurizio, 57
65023 Caramanico Terme (PE)

42°09'31.8"N 13°59'53.0"E

Cosa possiamo fare per te? * Campi obbligatori per ricevere un preventivo.

Fornisci i parametri se li conosci. Ci aiuterà a preparare un'offerta.

Come hai scoperto Fancy Fence?

Nella maggior parte dei casi risponderemo alla tua richiesta entro tre giorni lavorativi.

Fancy Fence